Lakitelek-Tőserdőn eladó fűthető hétvégi ház lakóingatlannak is!

Ingatlan azonosító: HI-2530364

Bács-Kiskun megye - Lakitelek, Hétvégi házas


28 900 000 Ft (75 457 €)

  • Hirdetés feladója: Ingatlaniroda
  • Pontos cím: Lakitelek
  • Típus: Eladó
  • Belső irodai azonosító: 3620662-5062803
  • Alapterület: 35 m²
  • Telekterület: 396 m² ( 110 négyszögöl )
  • Egész szobák száma (12 m² felett): 2 db
  • Félszobák száma (6-12 m² között): 0 db
  • Fűtés: elektromos
  • Akadálymentesített: nincs
  • Napelem van?: nincs
  • Légkondicionáló: nincs

Leírás

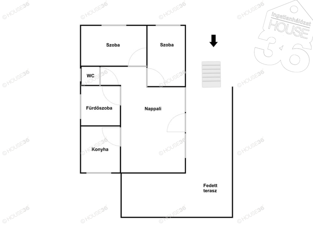
Eladó hétvégi ház Lakitelek-Tőserdő központjában! Lakitelek közkedvelt részén, Tőserdő központjában eladó egy tégla építésű, nappali + 2 félszobás hétvégi ház, amely fűtött, így akár lakóingatlannak is kiválóan alkalmas. A 396 m2-es telken elhelyezkedő ingatlan 35 m2-es lakóteret, valamint 15 m2 fedett teraszt és pincét kínál, kellemes, gondozott környezetben. Főbb jellemzők: - Tégla építésű, jó állapotú ház - Nappali + 2 félszoba elosztás - Konvektoros fűtés - Fa nyílászárók szúnyoghálóval - 15 m2 fedett terasz - Pince és kerti sütögető - 396 m2-es telek - közművek: villany, gáz, városi víz, fúrt kút Az ingatlan „hétvégi ház” megjelölésű, ezért lakáshitelre nem alkalmas. Képzelje el, ahogy Tőserdő csendes, zöld környezetében pihen, mindössze néhány lépésre a központtól, mégis természetközelben. Ez a hangulatos, tégla építésű hétvégi ház nemcsak nyaralásra, hanem akár egész éves lakhatásra is alkalmas – ahol a nyugalom és a kényelem találkozik. Ne maradjon le erről a ritka lehetőségről! Ha Ön is egy rendezett, jól megközelíthető, de mégis természetközeli ingatlant keres Lakiteleken, keressen bizalommal, és tekintse meg személyesen ezt a bájos házat Tőserdő szívében. ​ Figyelem az adatlap megbízónktól kapott adatok alapján készült, pontosságáért felelősséget nem tudunk vállalni! ​Amennyiben eladó-kiadó ingatlana van, vagy finanszírozási megoldást keres, hívjon, megtaláljuk a legjobb lehetőséget önnek! A HOUSE36 kínálatában található összes ingatlannal kapcsolatban tudok felvilágosítást nyújtani! Hívjon bizalommal! Szolgáltatásaink Kereső ügyfeleink számára INGYENESEK! Az iroda legfrissebb, aktuális kínálatát a HOUSE36 saját weboldalán találja!

E-mail küldése a hirdetőnek

Hibás hirdetés bejelentése

Sikeres elküldtük a hiba bejelentést.

Hirdető adatai

Kocsis Zsuzsanna
E-mail cím: zsuzsanna.kocsis@h36.hu
Telefonszám: +36707959014
Hirdetés feladója: Ingatlaniroda

Képek



Térkép


Ajánlott ingatlanok

Hétvégi házas

Holt-Tiszától pár méterre tégla nyaraló eladó !

Keresés azonosító alapján: HI-2541292
  • Alapterület: 40 m²
  • Telekterület: 210 m²
  • Ár: 18 900 000 Ft (49 347 €)
  • Feltöltés dátuma: 2026.02.25.
  •  
Új építésű lakás

*A belváros új ékköve, pár perc sétára a Főtértől*

Keresés azonosító alapján: HI-2540719
  • Kecskemét
  • Alapterület: 139 m²
  • Ár: 187 900 000 Ft (490 601 €)
  • Feltöltés dátuma: 2026.02.24.
  •  
Családi ház

Tiszaalpáron két generációnak is alkalmas ház eladó!

Keresés azonosító alapján: HI-2530351
  • Alapterület: 300 m²
  • Telekterület: 1 101 m²
  • Ár: 68 900 000 Ft (179 896 €)
  • Feltöltés dátuma: 2026.02.04.
  •  
Könnyűszerkezetes ház

Kecskemét - Kadafalván, költözhető új építésű ház!

Keresés azonosító alapján: HI-2553629
  • Kecskemét
  • Alapterület: 167 m²
  • Telekterület: 773 m²
  • Ár: 150 000 000 Ft (391 645 €)
  • Feltöltés dátuma: 2026.03.24.
  •  
Facebook
Blogger
Twitter
Tweets by hasznaltingatla
Flickr