Új építésű, nappali + 3 szobás, 1. emeleti , nagy erkélyes

Ingatlan azonosító: HI-2501387

Bács-Kiskun megye - Kecskemét, Új építésű lakás


89 390 000 Ft (234 619 €)

  • Hirdetés feladója: Ingatlaniroda
  • Pontos cím: Kecskemét
  • Típus: Eladó
  • Belső irodai azonosító: LK030536-5084550
  • Alapterület: 82 m²
  • Építés éve: 2025
  • Egész szobák száma (12 m² felett): 4 db
  • Félszobák száma (6-12 m² között): 0 db
  • Fürdőszobák száma: 1 db
  • Ingatlan állapota: új építésű
  • Fűtés: egyéb
  • Lift: nincs
  • Akadálymentesített: nincs
  • Energiatanúsítvány: B
  • Napelem van?: nincs
  • Erkély: van
  • Légkondicionáló: nincs
  • Tájolás: észak-nyugat
  • A lakás falazata: Tégla

Leírás

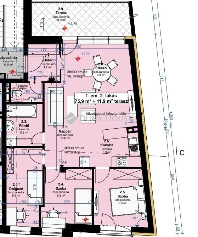
* * * MODERN, ENERGIATAKARÉKOS ÚJ ÉPÍTÉSŰ 1. EMELETI, NAPPALI + 3 SZOBÁS LAKÁS NAGY TERASSZAL * * * Új építésű belvárosi 4 lakásos társasházban, magas műszaki tartalommal megépülő, energiatakarékos, modern , értékálló lakások, zárt teremgarázs beálló vásárlási lehetőséggel . ! ! ! FOLYAMATBAN LÉVŐ KIVITELEZÉS VÁRHATÓ ÁRADÁS : 2025 DECEMBER Minden lakáshoz csendes belső udvarra néző 12 nm-es erkély is tartozik ! A beruházó a kivitelezés során a legjobb minőségű építőanyagokat használja, a legkorszerűbb technológiai kivitelezés mellett, hogy az ingatlanvásárlás hosszú távon is energiatakarékos és értékálló befektetés legyen az itt élő családok számára. A társasházban nappali + 2 szobás nagy teraszos lakás is elérhető ! 1.emelet 2. lakás Jellemzők: - Frekventált belváros közeli elhelyezkedés ( iskola, bolt, tömegközlekedés,...stb a közelben) - Amerikai konyhás nappali + 3 szoba - 1. emeleti - 75,9 nm + 12,3 nm terasz - GEALAN 3 rétegű, 6 légkamrás hő és hangszigetelt nyílászárók - Elektromos redőny és szúnyogháló rendelhető ( az alapár nem tartalmazza ) - Phorotherm X-therm 30-as tégla falazat + 15 cm homlokzati szigetelés - Zárt udvar parkosítva - Teremgarázs beálló minden lakáshoz ( az ár nem tartalmazza ) - Energia hatékony talajszondás hőszivattyús fűtés/hűtés rendszer - padlófűtés, mennyezet hűtés - GROHE szaniterek - Árgarancia - Személyre szabott fizetési ütemezés, egyedi igények figyelembevételével Az ingatlan vásárlásához hitel és/vagy CSOK plusz igénybe vehető melynek díjmentes ügyintézését egyedi kedvezményekkel biztosítjuk ! Az ár kulcsrakész átadással értendő, konyhabútor és lámpatestek nélkül, a teremgarázs beálló árát nem tartalmazza ! A lakások elhelyezkedésének és minőségi kivitelezésének köszönhetően gyorsan és jó áron bérbe adhatóak ! A projekt Kecskemét Belső Bethlenvárosi részén, a belváros szomszédságában megvalósuló lakókomplexum, melynek első és második ütemében 27 lakás került felépítésre, a 3. ütemben további 4 lakás kerül megépítésre. Fő célkitűzésünk volt Kecskemét belső, megújulásra váró városrészében olyan projekteket tervezni és megépíteni, amelyek kiváló és kényelmes otthonná válnak lakóik számára, ugyanakkor kivitelezéseink által egy szebb 21. századi városképet is létrehozunk. A lakások egy modern életvitelnek megfelelő lakókomplexumban épülnek, ahol a zöldövezeti, igényes és funkcionalitásában gazdag környezet szerves része az itt otthonra találó családok mindennapi életének. Kecskemét városában ez az egyedi megoldásokat tartalmazó beruházási koncepció egy modern, élhető lakóközösség képét valósítja meg. A beruházó a kivitelezés során a legjobb minőségű építőanyagokat használja, a legkorszerűbb technológiai kivitelezés mellett, hogy az ingatlanvásárlás hosszú távon is értékálló befektetés legyen az itt élő családok számára. Intelligens otthonainkból gyalogosan pár perc alatt elérhetőek iskolák, busz- és vonatállomás, illetve a történelmi belváros annak minden kényelmével. A kiváló infrastrukturális környezetnek köszönhetően gyermekeink akár gyalogosan akár biciklivel pár perc alatt elérhetnek szinte mindent ami számukra fontos, ezzel hatalmas stressztől mentesítve az itt élő családokat. Kecskemét egyik első, modern-városias, szellős, környezettudatos lakóépülete ahol a gyalogosan, autóval vagy tömegközlekedéssel közlekedők számára egyaránt optimális választás. - kiváló elhelyezkedés - biztonságos beléptető rendszer - kényelmes teraszok - biztonságos zárt udvar, parkolók - igényes növényekkel parkosított közösségi kert - tűzjelző rendszer az egész épületben - kiváló hang-és hőszigetelt falazat és nyílászárók - elektromos autó töltési lehetőség a zárt teremgarázs beállóknál - legkorszerűbb talajszondás hűtés/fűtés - saját, biztonságos zárt udvari játszótér, hogy a kicsik se unatkozzanak Szolgáltatásaink: - Ingyenes CSOK, babaváró és hitelügyintézés - Megbízható ügyvédi háttér biztosítása - Ingyenes ingatlan értékmeghatározás - Energetikai tanúsítvány készítés - Értékbecslés - Házépítés megbízható generálkivitelezővel A DUNA HOUSE teljes kínálatával állok rendelkezésére. INGATLAN - HITEL - ÉRTÉKBECSLÉS - ENERGETIKA További információkért keressen a megadott elérhetőségek egyikén. Tel.: +36-70/884-0033 E-mai: jerkovics.martin@dh.hu Referencia szám: LK030536

E-mail küldése a hirdetőnek

Hibás hirdetés bejelentése

Sikeres elküldtük a hiba bejelentést.

Hirdető adatai

Jerkovics Martin
E-mail cím: jerkovics.martin@dh.hu
Telefonszám: +36708840033
Duna House
Hirdetés feladója: Ingatlaniroda
Ingatlaniroda: Duna House
E-mail cím: kecskemet.jokai@dh.hu
Telefonszám: +3676955177

Képek



Térkép


Ajánlott ingatlanok

Új építésű lakás

Újépítésű 47nm+27nm erkélyes, 1 emeleti lakás

Keresés azonosító alapján: HI-2522901
  • Ballószög
  • Alapterület: 60 m²
  • Ár: 75 000 000 Ft (196 850 €)
  • Feltöltés dátuma: 2026.01.15.
  •  
Új építésű lakás

Eladó lakás, Kecskemét

Keresés azonosító alapján: HI-2444530
  • Kecskemét
  • Alapterület: 50 m²
  • Ár: 50 000 000 Ft (131 234 €)
  • Feltöltés dátuma: 2025.07.14.
  •  
Családi ház

HUNGARIKUM LIGET KÖZELÉBEN TANYA 2 HA TERÜLETTEL ELADÓ

Keresés azonosító alapján: HI-2374638
  • Lakitelek
  • Alapterület: 151 m²
  • Telekterület: 17 956 m²
  • Ár: 63 000 000 Ft (165 354 €)
  • Feltöltés dátuma: 2025.02.15.
  •  
Könnyűszerkezetes ház

NAPELEMES,nappali+3 szobás, DUPLA FÜRDŐS családi ház!

Keresés azonosító alapján: HI-2471607
  • Kecskemét
  • Alapterület: 120 m²
  • Telekterület: 565 m²
  • Ár: 82 900 000 Ft (217 585 €)
  • Feltöltés dátuma: 2025.09.07.
  •  
Facebook
Blogger
Twitter
Tweets by hasznaltingatla
Flickr