Eladó lakás Budapest 11. ker., Sasad

Ingatlan azonosító: HI-2521351

Budapest - Budapest XI., Új építésű lakás


237 400 000 Ft (624 737 €)

  • Hirdetés feladója: Ingatlaniroda
  • Pontos cím: Budapest XI.
  • Típus: Eladó
  • Belső irodai azonosító: U0047923-5056504
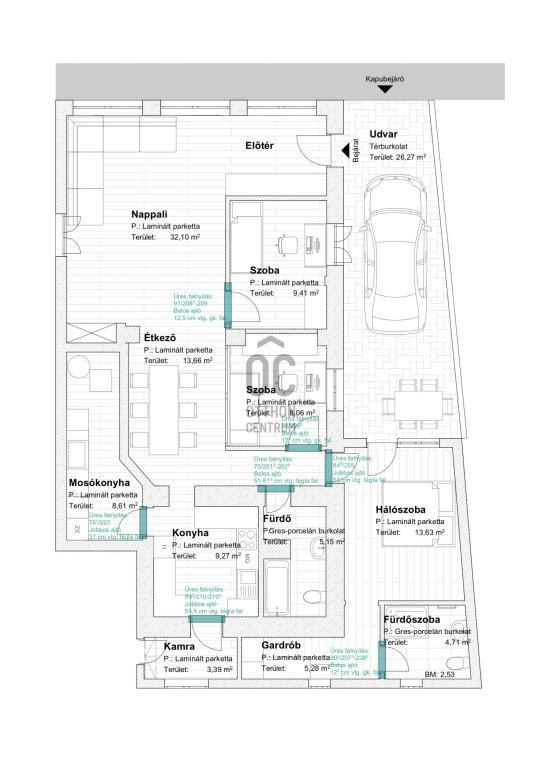
  • Alapterület: 121 m²
  • Építés éve: 2025
  • Egész szobák száma (12 m² felett): 4 db
  • Félszobák száma (6-12 m² között): 0 db
  • Fürdőszobák száma: 2 db
  • Emelet: 2. emelet
  • Ingatlan állapota: új építésű
  • Komfort: duplakomfortos
  • Fűtés: egyéb
  • Lift: van
  • Akadálymentesített: nincs
  • Napelem van?: nincs
  • Erkély: van
  • Légkondicionáló: nincs
  • Kilátás: kertre néző
  • Tájolás: dél-nyugat
  • A lakás falazata: Tégla

Leírás

Exkluzív életérzés Sasadon – újépítésű, 4 szobás penthouse lakás eladó a XI. kerületben! Ha egy olyan otthont keres, ahol a modern design, a minőség és a nyugalom találkozik, ez a sasadi penthouse tökéletes választás. A csendes, zöldövezeti környezetben elhelyezkedő, újépítésű, 4 szobás lakás tágas tereivel, panorámás teraszával és prémium kivitelezésével igazi ritkaság a piacon. XI. Kerület SASAD KÖRZETÉBEN, CSENDES MELLÉKUTCÁBAN, SÍK, négyzet alakú, 1026 m2 telken épülő, 4 LAKÁSOS LIFTES TÁRSASHÁZBAN kínálunk eladásra, egy DNY-i TÁJOLÁSÚ, 121 m2-es (60 m2 terasz 1/3 méretének a beszámítása mellett. A terasz nélküli nettó alapterület 101 m2), 4 SZOBÁS, 2 FÜRDŐSZOBÁS, 2 DB TEREMGARÁZZSAL (+10 Mft/db), és 5,5 m2 tárolóval (+5,5 Mft) rendelkező újépítésű penthouse lakást. Az ingatlan főfalak által behatárolt területe jelen pillanatban még a leendő vásárlói igényeknek megfelelően alakítható ki: válaszfalak elhelyezése, szobaszám, szobák mérete….stb. Fűtés-hűtés: Hőszivattyús rendszerrel padlófűtés, illetve mennyezet hűtés – fűtés. Külső nyílászárók: Műanyag profilú 6 légkamrás, kívül színes fólia, 3 rétegű üvegezés. A KIVITELEZŐ TÖBB MINT 100!!! TÁRSASHÁZAT ÉPÍTETT MÁR FEL A 2,11,12. KERÜLETEKBEN) a lakás KULCSRAKÉSZ ÁLLAPOTA 2026 év végére várható. Közlekedés: 53, 108E, 139, és 140 buszok 5 perc sétatávolságra, M4 METRÓ KELENFÖLDI VÉGÁLLOMÁSA BUSSZAL 5 PERC ALATT ELÉRHETŐ. TISZTELT ÉRDEKLŐDŐ! AMENNYIBEN SZÁNDÉKÁBAN ÁLL INGATLANT ELADNI - A LEGRÖVIDEBB IDŐN BELÜL, GARANTÁLT JOGI, ÉS BANKI HÁTTÉRREL - KERESSEN BIZALOMMAL, HOGY EGY SZEMÉLYES HELYSZÍNI FELMÉRÉST KÖVETŐ INGYENES ÉRTÉKMEGÁLLAPÍTÁS UTÁN, EGYÜTT TUDJUNK MŰKÖDNI AZ ÖN INGATLANÁNAK AZ ÉRTÉKESÍTÉSÉBEN IS!

E-mail küldése a hirdetőnek

Hibás hirdetés bejelentése

Sikeres elküldtük a hiba bejelentést.

Hirdető adatai

Stark Attila
E-mail cím: stark.attila@oc.hu
Telefonszám: +36 70 388 5816
Otthon Centrum
Hirdetés feladója: Ingatlaniroda
Ingatlaniroda: Otthon Centrum
E-mail cím: krisztina@oc.hu
Telefonszám: +36 1 225 8510

Képek



Térkép


Ajánlott ingatlanok

Új építésű lakás

Eladó lakás Budapest 11. ker., Lágymányos

Keresés azonosító alapján: HI-2521366
  • Budapest XI.
  • Alapterület: 105 m²
  • Ár: 174 000 000 Ft (457 895 €)
  • Feltöltés dátuma: 2026.01.13.
  •  
Tégla lakás

Eladó lakás Budapest 2. ker., Országút

Keresés azonosító alapján: HI-2521346
  • Budapest II.
  • Alapterület: 622 m²
  • Ár: 1 012 659 948 Ft (2 664 895 €)
  • Feltöltés dátuma: 2026.01.13.
  •  
Tégla lakás

Eladó lakás Budapest 5. ker., Lipótváros

Keresés azonosító alapján: HI-2521359
  • Budapest V.
  • Alapterület: 94 m²
  • Ár: 268 800 000 Ft (707 368 €)
  • Feltöltés dátuma: 2026.01.13.
  •  
Tégla lakás

Eladó lakás Budapest 3. ker., Óbuda

Keresés azonosító alapján: HI-2521381
  • Budapest III.
  • Alapterület: 27 m²
  • Ár: 69 900 000 Ft (183 947 €)
  • Feltöltés dátuma: 2026.01.13.
  •  
Facebook
Blogger
Twitter
Tweets by hasznaltingatla
Flickr