Eladó Lakás, Budapest 12. ker.

Ingatlan azonosító: HI-2547669

Budapest - Budapest XII., Tégla lakás


129 900 000 Ft (354 918 €)

  • Hirdetés feladója: Ingatlaniroda
  • Pontos cím: Budapest XII.
  • Típus: Eladó
  • Belső irodai azonosító: M324177-5168624
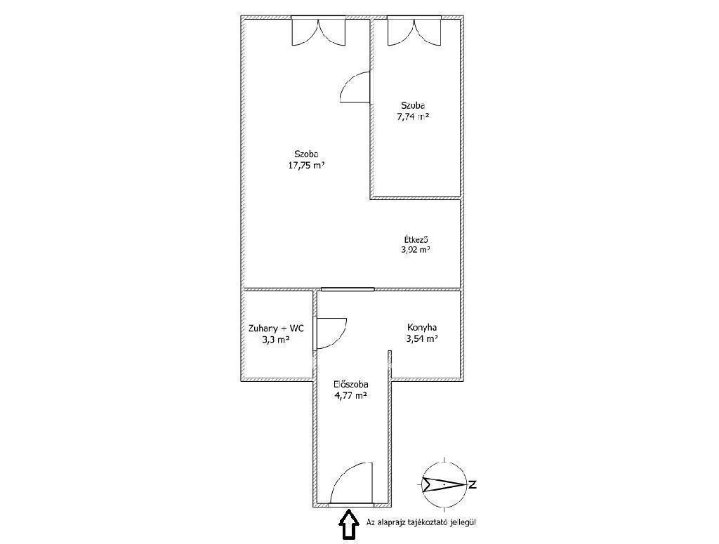
  • Alapterület: 65 m²
  • Építés éve: 1983
  • Egész szobák száma (12 m² felett): 2 db
  • Félszobák száma (6-12 m² között): 1 db
  • Emelet: földszint
  • Ingatlan állapota: felújított
  • Komfort: összkomfortos
  • Fűtés: elektromos
  • Lift: nincs
  • Akadálymentesített: nincs
  • Napelem van?: nincs
  • Erkély: nincs
  • Légkondicionáló: nincs
  • Kilátás: panorámás
  • Tájolás: kelet
  • A lakás falazata: Tégla
  • Közös költség mértéke: 20000

Leírás

Prémium, felújított lakás eladó Orbánhegyen, zöldövezeti környezetben. ENGLISH DESCRIPTION BELOW! Budapest XII. kerületének egyik legkedveltebb részén, Orbánhegyen kínálunk megvételre egy teljes körűen felújított, igényesen berendezett nappali + 2 hálószobás lakást. Az ingatlan az utca felől magasföldszinti, az udvar felől első emeleti elhelyezkedésű, így világos és csendes. A korábbi loggia beépítésével a nappali-étkező tágasabbá vált, padlótól plafonig érő ablakokkal és erkélyajtóval, amelyek a zárt, parkosított udvar felé néznek. A lakás teljesen bútorozott és gépesített. A konyha beépített bútorral, kerámia főzőlappal, sütővel, hűtővel, mosogatógéppel és kávéfőzővel felszerelt. A fürdőszobában kád és mosó-szárítógép található. A felújítás során cserélték a nyílászárókat és a vezetékeket, vízálló laminált parketta került beépítésre, valamint elektromos, távirányítós redőnyök kerültek minden helyiségbe. A fűtésről és hűtésről klíma gondoskodik, H tarifa kiépítéssel. A 1011 nm-es zárt udvar parkosított, játszótérrel rendelkezik. Az utcai parkolás ingyenes. A környék kiváló infrastruktúrával rendelkezik: a Déli pályaudvar, a Széll Kálmán tér és a MOM Park néhány percen belül elérhető. Az ingatlan ideális választás pároknak vagy családoknak, akik nyugodt, zöld környezetben keresnek azonnal költözhető otthont. ⸻ Renovated premium apartment for sale in Orbánhegy. A fully renovated and tastefully furnished living room + 2 bedroom apartment is for sale in the highly desirable Orbánhegy area of Budapest’s 12th district. The property is located on a raised ground floor from the street side and on the first floor from the courtyard side, making it bright while remaining quiet and private. The former loggia has been integrated into the living and dining area, creating a larger open space with floor-to-ceiling windows and balcony doors overlooking the landscaped courtyard. The apartment is fully furnished and equipped. The kitchen includes built-in cabinets, ceramic cooktop, oven, refrigerator, dishwasher and coffee machine. The bathroom features a bathtub and a washer-dryer. During the renovation, windows and electrical systems were replaced, waterproof laminate flooring was installed, and all rooms received electric remote-controlled shutters. Heating and cooling are provided by air conditioning with an H tariff system. Residents can enjoy a private 1011 sqm landscaped courtyard with a playground. Street parking is free. The location offers excellent infrastructure, with Déli Railway Station, Széll Kálmán Square and MOM Park just minutes away. The property is an ideal choice for couples or families looking for a ready-to-move-in home in a peaceful green environment. Referencia szám: M324177-HI

E-mail küldése a hirdetőnek

Hibás hirdetés bejelentése

Sikeres elküldtük a hiba bejelentést.

Hirdető adatai

Gregoryan Artur
E-mail cím: artur.gregoryan@otpip.hu
Telefonszám: +36706300162
OTPip
Hirdetés feladója: Ingatlaniroda
Ingatlaniroda: OTPip
E-mail cím: pannonia@otpip.hu
Telefonszám: +36707082439

Képek



Térkép


Ajánlott ingatlanok

Tégla lakás

Eladó Lakás, Budapest 8. ker.

Keresés azonosító alapján: HI-2487785
  • Budapest VIII.
  • Alapterület: 125 m²
  • Ár: 124 000 000 Ft (338 798 €)
  • Feltöltés dátuma: 2025.10.09.
  •  
Tégla lakás

Eladó Lakás, Budapest 8. ker.

Keresés azonosító alapján: HI-2436399
  • Budapest VIII.
  • Alapterület: 66 m²
  • Ár: 110 000 000 Ft (300 546 €)
  • Feltöltés dátuma: 2025.06.29.
  •  
Tégla lakás

Eladó Lakás, Budapest 13. ker.

Keresés azonosító alapján: HI-2558449
  • Budapest XIII.
  • Alapterület: 61 m²
  • Ár: 97 900 000 Ft (267 486 €)
  • Feltöltés dátuma: 2026.04.04.
  •  
Tégla lakás

Eladó Lakás, Budapest 13. ker.

Keresés azonosító alapján: HI-2539200
  • Budapest XIII.
  • Alapterület: 109 m²
  • Ár: 147 000 000 Ft (401 639 €)
  • Feltöltés dátuma: 2026.02.19.
  •  
Facebook
Blogger
Twitter
Tweets by hasznaltingatla
Flickr