Eladó Lakás, Budapest 2. ker.

Ingatlan azonosító: HI-2554428

Budapest - Budapest II., Tégla lakás


154 900 000 Ft (400 258 €)

  • Hirdetés feladója: Ingatlaniroda
  • Pontos cím: Budapest II.
  • Típus: Eladó
  • Belső irodai azonosító: M325384-5184200
  • Alapterület: 84 m²
  • Építés éve: 1940
  • Egész szobák száma (12 m² felett): 2 db
  • Félszobák száma (6-12 m² között): 1 db
  • Emelet: 2. emelet
  • Ingatlan állapota: jó állapotú
  • Komfort: összkomfortos
  • Fűtés: egyéb
  • Lift: nincs
  • Akadálymentesített: nincs
  • Napelem van?: nincs
  • Erkély: van
  • Légkondicionáló: nincs
  • Kilátás: utcai
  • Tájolás: dél-nyugat
  • A lakás falazata: Tégla
  • Közös költség mértéke: 39000

Leírás

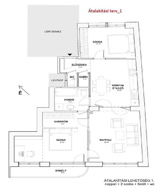
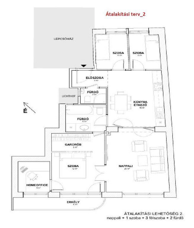
Budai életérzés a Rózsadomb lábánál, tágas, erkélyes otthon a II. kerületben ENGLISH DESCRIPTION BELOW!!! Eladó egy különleges hangulatú lakás Budapest II. kerületében, a Kút utcában, egy Bauhaus stílusú társasház legfelső szintjén, a budai oldal egyik legkeresettebb, legélhetőbb részén. Ez az ingatlan ideális választás mindazok számára, akik a városi kényelmet szeretnék ötvözni a zöldövezeti nyugalommal – különösen családok számára, hosszú távra tervezve. Főbb jellemzők: -84 nm alapterület, 2 + fél szoba + hall (könnyen alakítható akár 3–4 szobássá), erkély, világos, tágas terek, 2,9 m belmagasság - két tájolás (DNY–ÉK), egész napos természetes fény - legfelső szint, nincs felső szomszéd, saját, 6 nm-es pince - közös, zöld belső kert használata Elhelyezkedés: A lakás lokációja kivételes: csendes, nyugodt utcában található, mégis minden fontos szolgáltatás pár perc sétával elérhető. A közelben megtalálható a Széll Kálmán tér, a Mammut bevásárlóközpont, a Fény utcai piac, valamint a Millenáris park és a Margit-sziget is. A környék tökéletes egyensúlyt kínál a városi pezsgés és a természet közelsége között. Családbarát kialakítás: A lakás elrendezése jól alakítható, így ideális családok számára: - külön nyíló, jól szeparálható szobák - bővíthető szobaszám (akár 3–4 szoba) - világos, élhető közösségi terek - biztonságos, barátságos lakóközösség A nagy ablakfelületeknek köszönhetően akár több fürdőszoba kialakítása is megoldható, így az ingatlan hosszú távon is kényelmes életteret biztosít. Az épületről: - 1940-es években épült Bauhaus jellegű társasház - hőszigetelt, karbantartott állapot, 12 lakásos, csendes közösség - gondozott, zöld belső kert, felújított, világos lépcsőház Összegzés: A lakás jó állapotú, igény szerint korszerűsíthető, ugyanakkor már most is otthonos és azonnal költözhető. Kiváló választás azok számára, akik értékálló, jól alakítható budai otthont keresnek prémium környezetben. További információért vagy megtekintésért keressen bizalommal! ⸻ Buda lifestyle at the foot of Rózsadomb, spacious apartment with balcony A unique top-floor apartment is for sale in Budapest’s 2nd district, on Kút Street, in a Bauhaus-style building located in one of the most desirable and livable areas of Buda. This property is ideal for those who want to combine urban convenience with a शांत, green environment – especially perfect for families planning long-term. Key features: - 84 sqm, 2 + half rooms + hall (can be converted into 3–4 rooms) - balcony, bright, spacious interiors, 2.9 m ceiling height - dual orientation (SW–NE), natural light all day - top floor, no upstairs neighbors, private 6 sqm storage room - access to a shared green garden Location: The apartment is situated in a quiet street, yet everything you need is within walking distance. Nearby you will find Széll Kálmán Square, Mammut Shopping Center, Fény Street Market, Millenáris Park, and Margaret Island. The area offers a perfect balance between vibrant city life and nature. Family-friendly layout: - well-separated rooms, flexible floor plan (up to 3–4 rooms) - bright, livable common spaces, safe, friendly community Large windows also allow the possibility of creating additional bathrooms, making the property comfortable for long-term living. Building: - Bauhaus-style building from the 1940s - insulated and well-maintained, 12 apartments, quiet community - green inner garden, renovated staircase Summary: The apartment is in good condition and can be modernized to your taste, while already being move-in ready. An excellent choice for those seeking a valuable, customizable home in a premium Buda location. Contact me for more information or a viewing! Referencia szám: M325384-HI

E-mail küldése a hirdetőnek

Hibás hirdetés bejelentése

Sikeres elküldtük a hiba bejelentést.

Hirdető adatai

Gregoryan Artur
E-mail cím: artur.gregoryan@otpip.hu
Telefonszám: +36706300162
OTPip
Hirdetés feladója: Ingatlaniroda
Ingatlaniroda: OTPip
E-mail cím: pannonia@otpip.hu
Telefonszám: +36707082439

Képek



Térkép


Ajánlott ingatlanok

Tégla lakás

Eladó Lakás, Budapest 8. ker.

Keresés azonosító alapján: HI-2552954
  • Budapest VIII.
  • Alapterület: 113 m²
  • Ár: 99 000 000 Ft (255 814 €)
  • Feltöltés dátuma: 2026.03.21.
  •  
Tégla lakás

Eladó Lakás, Budapest 5. ker.

Keresés azonosító alapján: HI-2502164
  • Budapest V.
  • Alapterület: 80 m²
  • Ár: 199 900 000 Ft (516 537 €)
  • Feltöltés dátuma: 2025.11.15.
  •  
Tégla lakás

Eladó Lakás, Budapest 13. ker.

Keresés azonosító alapján: HI-2503979
  • Budapest XIII.
  • Alapterület: 26 m²
  • Ár: 54 900 000 Ft (141 860 €)
  • Feltöltés dátuma: 2025.11.21.
  •  
Tégla lakás

Eladó Lakás, Budapest 8. ker.

Keresés azonosító alapján: HI-2515246
  • Budapest VIII.
  • Alapterület: 43 m²
  • Ár: 73 500 000 Ft (189 922 €)
  • Feltöltés dátuma: 2025.12.30.
  • klímás
Facebook
Blogger
Twitter
Tweets by hasznaltingatla
Flickr