Eladó Lakás, Budapest 6. ker.

Ingatlan azonosító: HI-2486662

Budapest - Budapest VI., Tégla lakás


99 000 000 Ft (257 813 €)

  • Hirdetés feladója: Ingatlaniroda
  • Pontos cím: Budapest VI.
  • Típus: Eladó
  • Belső irodai azonosító: M313496-5054618
  • Alapterület: 51 m²
  • Építés éve: 1920
  • Egész szobák száma (12 m² felett): 1 db
  • Félszobák száma (6-12 m² között): 1 db
  • Fürdőszobák száma: 1 db
  • Emelet: földszint
  • Ingatlan állapota: felújított
  • Komfort: összkomfortos
  • Fűtés: gáz (cirko)
  • Lift: van
  • Akadálymentesített: nincs
  • Napelem van?: nincs
  • Erkély: van
  • Légkondicionáló: van
  • Kilátás: udvari
  • Tájolás: észak-nyugat
  • A lakás falazata: Tégla
  • Közös költség mértéke: 15000

Leírás

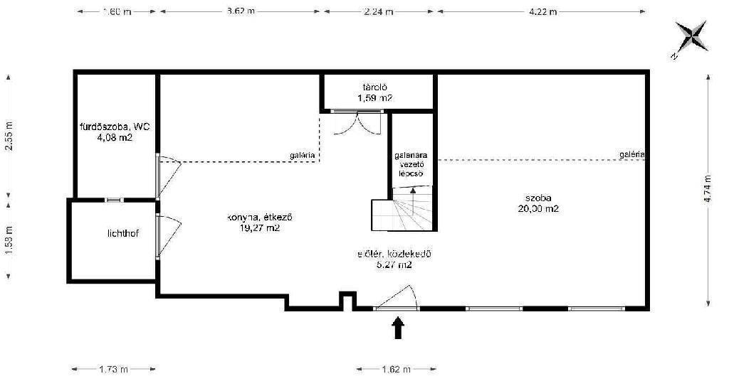
Budapest ikonikus sugárútján, az Andrássy úton, melyet gyakran a magyar Champs-Élysées-ként emlegetnek , a Cseh Nagykövetség közvetlen közelében kínálunk eladásra egy magasföldszinti ingatlant. A tulajdoni lapon 51 nm alapterület szerepel, azonban a kialakított 18 nm-es galériával és a kizárólagos használatú, 4 nm-es lichthof területtel együtt összesen 73 nm hasznos élettérrel rendelkezik. Az ingatlan teljes körűen felújított, műszakilag és esztétikailag egyaránt kifogástalan állapotban van. 2017-ben alakították át jelenlegi formájára lakberendező bevonásával, prémium színvonalon. Az átalakítás során teljes gépészeti rendszer- és vezetékhálózat-csere történt, modern padlófűtés, új szaniterek és beépített bútorok kerültek beépítésre. Az alaprajzot teljes mértékben újragondolták. Az ablakok korszerű, hőszigetelt üvegezést kaptak, a fűtésről és a melegvízről kondenzációs gázkazán gondoskodik. A tágas belmagasság lehetővé tette egy 18 nm-es galéria kialakítását. Az enteriőrt a 19. századi Andrássy útról készült képek, valamint eredeti, felújított díszítőelemek, például korlátok és lámpatartók, teszik egyedivé, megőrizve a klasszikus hangulatot. Az ingatlan belső terei átgondoltan, praktikus elrendezéssel készültek. A bejáraton belépve egy előtér fogad, amely közvetlen összeköttetésben áll a balra található konyha-étkező résszel, illetve a jobbra eső nappalival. A földszinten mindenhol padlófűtés működik. A nappaliban egy térdfallal leválasztott dolgozósarok is helyet kapott. A galériára vezető lépcsővel szemben egy 2 nm-es háztartási helyiség található, a lépcső alatti részek pedig tárolóként lettek hasznosítva. A fürdőszoba, amely a konyha felől közelíthető meg, zuhanyzóval és toalettel került kialakításra. Ugyanezen a részen található a lakáshoz kizárólagosan tartozó, intim jellegű, 4 nm-es lichthof is, melyet hangulatos, kivilágított pihenősarokká alakítottak. A galéria két részre tagolódik: a nappali felett egy kb. 9 nm-es, radiátoros fűtéssel felszerelt, ajtóval szeparált hálófülke kapott helyet, melyhez franciaerkély nyílik, rálátással a nappalira. A konyha fölött egy szintén kb. 9 nm-es, nyitott, üvegkorláttal határolt galéria áll rendelkezésre, amelyen vendégágy és gardróbszekrény is elfért. A felújítás során külön mosókonyha került kialakításra mosó- és szárítógéppel, valamint modern, teljesen gépesített konyha (beépített sütő, indukciós főzőlap, mosogatógép, fagyasztós hűtő). A biztonságról riasztórendszer, a komfortérzetről pedig hűtő-fűtő klíma gondoskodik. Kiváló elhelyezkedésének és adottságainak köszönhetően az ingatlan befektetésként is remek lehetőség. Jelenleg is bérbe van adva, havi 420.000 Ft bérleti díjért. Referencia szám: M313496-HI

E-mail küldése a hirdetőnek

Hibás hirdetés bejelentése

Sikeres elküldtük a hiba bejelentést.

Hirdető adatai

Tamásné Mocsári Ildikó
E-mail cím: tamasne.mocsari.ildiko@otpip.hu
Telefonszám: +36-70-206-2979
OTPip
Hirdetés feladója: Ingatlaniroda
Ingatlaniroda: OTPip
E-mail cím: zuglo@otpip.hu
Telefonszám: +36-30-961-7263

Képek



Térkép


Ajánlott ingatlanok

Tégla lakás

Eladó Lakás, Budapest 7. ker.

Keresés azonosító alapján: HI-2505529
  • Budapest VII.
  • Alapterület: 46 m²
  • Ár: 74 900 000 Ft (195 052 €)
  • Feltöltés dátuma: 2025.11.24.
  •  
Tégla lakás

Eladó Lakás, Budapest 7. ker.

Keresés azonosító alapján: HI-2438490
  • Budapest VII.
  • Alapterület: 10 m²
  • Ár: 34 800 000 Ft (90 625 €)
  • Feltöltés dátuma: 2025.07.02.
  •  
Tégla lakás

Eladó Lakás, Budapest 14. ker.

Keresés azonosító alapján: HI-2503089
  • Budapest XIV.
  • Alapterület: 54 m²
  • Ár: 62 990 000 Ft (164 036 €)
  • Feltöltés dátuma: 2025.11.18.
  •  
Tégla lakás

Eladó Lakás, Budapest 15. ker.

Keresés azonosító alapján: HI-2500198
  • Budapest XV.
  • Alapterület: 64 m²
  • Ár: 76 900 000 Ft (200 260 €)
  • Feltöltés dátuma: 2025.11.10.
  •  
Facebook
Blogger
Twitter
Tweets by hasznaltingatla
Flickr