Eladó Ház, Magyargencs

Ingatlan azonosító: HI-2526096

Veszprém megye - Magyargencs, Családi ház


16 000 000 Ft (44 944 €)

  • Hirdetés feladója: Ingatlaniroda
  • Pontos cím: Magyargencs
  • Típus: Eladó
  • Belső irodai azonosító: M319088-5131813
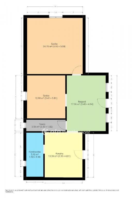
  • Alapterület: 77 m²
  • Telekterület: 1 228 m² ( 341 négyszögöl )
  • Építés éve: 1950
  • Egész szobák száma (12 m² felett): 2 db
  • Félszobák száma (6-12 m² között): 0 db
  • Ingatlan állapota: közepes állapotú
  • Komfort: összkomfortos
  • Fűtés: gáz (cirko)
  • Pince: nincs
  • Akadálymentesített: nincs
  • Napelem van?: nincs
  • Légkondicionáló: nincs

Leírás

Eladásra kínálok Veszprém vármegyében, Magyargencs településen egy 77,6 m2 alapterületű, tégla és kő falazatú családi házat, amely egy 1.228 m2-es telken helyezkedik el. A ház elosztása: kettő külön nyíló szoba, konyha-étkező, fürdőszoba, előszoba, kamra. A ház valamint a tető statikailag és szerkezetileg stabil, jelentős felújítást nem végeztek rajta. A tetőt 8 éve újították, fóliázták és a fürdőszoba is most lett felújítva. A közművek, víz, villany, gáz, csatorna be vannak vezetve. A melegvizet villanybojler szolgáltatja. Fűtése 2 éves gázkazánnal, radiátoros hőleadással megoldott. Ezen kívül a konyhában és a szobában elhelyezett cserépkályha és kályha gondoskodik a ház melegéről. Az előszobában lévő ablakok régi típusú, korának megfelelő állapotban lévő fa nyílászárók. A többi nyílászáró már modern, műanyag. A kisebb szoba laminált parkettával, a nagyobb szoba parkettával, a többi helység pedig járólappal burkolt. Az udvaron található több melléképület. Parkolás az ingatlan előtt ingyenesen lehetséges. Magyargencs nyugodt és barátságos település, ahol a természet közelsége és a tiszta levegő mindennapok részét képezik. A község ideális választás azoknak, akik csendes, biztonságos környezetben szeretnének élni, ugyanakkor könnyen elérhető közelségben maradnának a nagyobb városoktól. A falut erdők, kirándulóhelyek veszik körül, így a szabadidő aktív eltöltésére is számos lehetőséget nyújt. A helyiek vendégszerető közössége és a rendezett településkép igazi otthonosságot sugároz. Mindezek miatt Magyargencs nemcsak lakóhelynek, hanem hosszú távú otthonnak is kiváló választás. Ne hagyja ki ezt a ritka ajánlatot! Amennyiben további információra lenne szüksége, vagy kérdése lenne keressen bizalommal! Az OTP Ingatlanpont teljes körű ügyintézéssel áll az eladók és a vevők rendelkezésére. A kínálatunkból választott ingatlan finanszírozásához kedvezményes hitelkonstrukciót kínálunk. Az adásvételi szerződés megkötéséhez igény szerint megbízható ügyvédi közreműködést biztosítunk, és segítséget nyújtunk az adásvételhez kapcsolódó ügyek intézéséhez is. A hirdetési szöveg és képek az OTP Ingatlanpont Kft. tulajdona. Az energetikai tanúsítvány készítése folyamatban van, amint rendelkezésre áll, úgy azzal a hirdetés frissítésre kerül. 16000000 Ft Amennyiben az ingatlan felkeltette érdeklődését, esetleg bármivel kapcsolatban kérdése lenne, keressen Bizalommal! Verrasztó Edina: +36703156380 Referencia szám: M319088-HI

E-mail küldése a hirdetőnek

Hibás hirdetés bejelentése

Sikeres elküldtük a hiba bejelentést.

Hirdető adatai

Verrasztó Edina Irén
E-mail cím: edina.iren.verraszto@otpip.hu
Telefonszám: +36703156380
OTPip
Hirdetés feladója: Ingatlaniroda
Ingatlaniroda: OTPip
E-mail cím: papa@otpip.hu
Telefonszám: +36707081049

Képek



Térkép


Ajánlott ingatlanok

Családi ház

Eladó Ház, Pápa

Keresés azonosító alapján: HI-2526089
  • Pápa
  • Alapterület: 185 m²
  • Telekterület: 354 m²
  • Ár: 119 000 000 Ft (334 270 €)
  • Feltöltés dátuma: 2026.01.26.
  •  
Családi ház

Eladó Ház, Marcalgergelyi

Keresés azonosító alapján: HI-2505542
  • Marcalgergelyi
  • Alapterület: 120 m²
  • Telekterület: 1 739 m²
  • Ár: 31 000 000 Ft (87 079 €)
  • Feltöltés dátuma: 2025.11.25.
  •  
Családi ház

Eladó Ház, Vönöck

Keresés azonosító alapján: HI-2560037
  • Vönöck
  • Alapterület: 72 m²
  • Telekterület: 1 140 m²
  • Ár: 18 990 000 Ft (53 343 €)
  • Feltöltés dátuma: 2026.04.11.
  •  
Családi ház

Eladó Ház, Celldömölk

Keresés azonosító alapján: HI-2526094
  • Celldömölk
  • Alapterület: 130 m²
  • Telekterület: 1 180 m²
  • Ár: 45 000 000 Ft (126 404 €)
  • Feltöltés dátuma: 2026.01.26.
  •  
Facebook
Blogger
Twitter
Tweets by hasznaltingatla
Flickr