Eladó Ház, Martonvásár

Ingatlan azonosító: HI-2484426

Fejér megye - Martonvásár, Családi ház


87 500 000 Ft (224 359 €)

  • Hirdetés feladója: Ingatlaniroda
  • Pontos cím: Martonvásár
  • Típus: Eladó
  • Belső irodai azonosító: M312520-5050809
  • Alapterület: 137 m²
  • Telekterület: 1 846 m² ( 513 négyszögöl )
  • Építés éve: 1982
  • Egész szobák száma (12 m² felett): 5 db
  • Félszobák száma (6-12 m² között): 0 db
  • Ingatlan állapota: közepes állapotú
  • Komfort: összkomfortos
  • Fűtés: gáz (cirko)
  • Pince: nincs
  • Akadálymentesített: nincs
  • Napelem van?: nincs
  • Légkondicionáló: nincs

Leírás

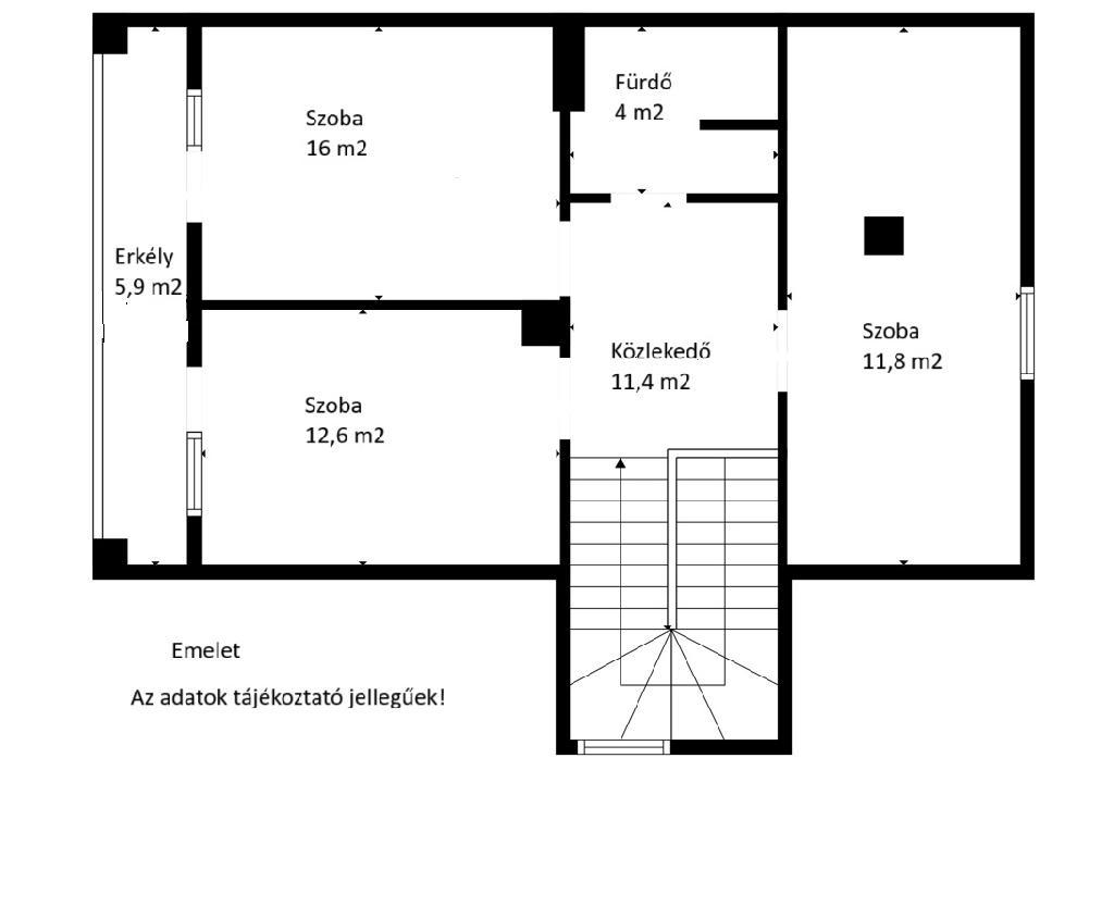
Martonvásár szívében, csendes környezetben eladó egy 137 nm-es, kétszintes, téglaépítésű családi ház egy 1 846 nm-es belterületi telken. Az ingatlan 5 szobával, konyhával, kamrával, 2 fürdővel és wc-vel rendelkezik. A földszinten hálószoba, tágas nappali étkezővel, konyha és fürdőszoba található, az emeleten további 3 szoba, erkélyek és egy fürdőszoba került kialakításra. A ház 60 nm-es alápincézett résszel, fedett garázzsal és több parkolóhellyel rendelkezik, így nagyobb családok vagy több generáció együttélésére is kiváló. Az épület összközműves, gázkazános, radiátoros fűtéssel ellátott. Belső tere részben felújítandó, így igény szerint alakítható. A telek akár leválasztható, befektetésre is alkalmas. Kiváló közlekedés: Budapest 15?20 perc, Székesfehérvár és Dunaújváros kb. 15 perc, Velencei-tó 10 perc alatt elérhető. 87500000 Ft Érd.: Lepsényi Kornél +3670/8840188 Referencia szám: M312520

E-mail küldése a hirdetőnek

Hibás hirdetés bejelentése

Sikeres elküldtük a hiba bejelentést.

Hirdető adatai

Lepsényi Kornél
E-mail cím: lepsenyi.kornel@otpip.hu
Telefonszám: +36-70-884-0188
OTPip
Hirdetés feladója: Ingatlaniroda
Ingatlaniroda: OTPip
E-mail cím: velence@otpip.hu
Telefonszám: +36-70-457-6920

Képek



Térkép


Ajánlott ingatlanok

Családi ház

Eladó Ház, Velence

Keresés azonosító alapján: HI-2473181
  • Velence
  • Alapterület: 109 m²
  • Telekterület: 1 022 m²
  • Ár: 97 300 000 Ft (249 487 €)
  • Feltöltés dátuma: 2025.09.12.
  •  
Családi ház

Eladó Ház, Tata

Keresés azonosító alapján: HI-2473192
  • Tata
  • Alapterület: 108 m²
  • Telekterület: 984 m²
  • Ár: 34 900 000 Ft (89 487 €)
  • Feltöltés dátuma: 2025.09.12.
  •  
Családi ház

Eladó Ház, Vál

Keresés azonosító alapján: HI-2480847
  • Vál
  • Alapterület: 311 m²
  • Telekterület: 1 118 m²
  • Ár: 156 000 000 Ft (400 000 €)
  • Feltöltés dátuma: 2025.09.26.
  •  
Családi ház

Eladó Ház, Dég

Keresés azonosító alapján: HI-2490501
  • Dég
  • Alapterület: 100 m²
  • Telekterület: 2 150 m²
  • Ár: 19 900 000 Ft (51 026 €)
  • Feltöltés dátuma: 2025.10.17.
  •  
Facebook
Blogger
Twitter
Tweets by hasznaltingatla
Flickr